تفاصيل كمبوند ريفان العاصمة الادارية الجديدة
كمبوند ريفان العاصمة الادارية الجديدة Rivan New Capital أحدث اعمال شركة التعمير العربية للتطوير العقاري Al Tameer Arabian Development والتي تميزت بتقديمها أضخم المشروعات علي الأراضي السعودية وساعدتها في امتلاك حصيلة خبرات واسعة تضمن تكامل مشاريعها مما ينعكس علي راحة ورضاء العملاء الدائمة ،كما تسير علي خطي عريقة هادفة إلي اتباع أعلي المعايير الدولية و أيضا أحدث التقنيات العالمية باستمرار لنقل مشاريعها إلي أعلي مستويات التقدم والتميز.
أغتنم الفرصة الان وأحصل على شقتك السكنية بقلب العاصمة الادارية الجديدة ،وكن قريب من أهم الطرق والمحاور الرئيسية المباشرة والأماكن الحيوية التي تجعل العيش داخل الكمبوند أكثر تميز ،كما تقدم لك الشركة القائمة على تنفيذ المشروع وهي شركة التعمير العربية للتطوير والاستثمار العقاري باقة كبيرة من الخدمات المتنوعة والمرافق العامة وأيضا الوسائل والمناطق الترفيهية من أجل عيش حياة كريمة متكاملة ،بالإضافة الي وجود المساحات الخضراء الواسعة والبحيرات الصناعية التي تتناغم وسط اللاند سكيب حتى تعطيك فيو خلاب للطبيعة الراقية ،حيث ان جميع الوحدات السكنية تتمتع بتصميم معماري جذاب وفريد على الطراز العصري الحديث وبأفضل اعمال الديكورات أجز وحدتك الان بأفضل الأسعار والمساحات التي تناسبك مع أطول فترات للسداد تصل إلي 8 سنوات بدون أي فوائد إضافية.
أبرز أعمال شركة التعمير العربية للتطوير العقاري
- عدة أعمال في المملكة العربية السعودية.
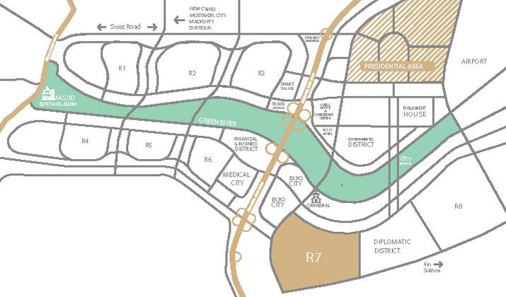
موقع كمبوند ريفان العاصمة الادارية الجديدة

يعد موقع كمبوند ريفان العاصمة الادارية الجديدة Rivan New Capital في واحد من المواقع الاستراتيجية المتميزة بقلب العاصمة وتحديدا بالحي السكني السابع R7 في القطعة قطعة F5 بجوار المنطقة الدبلوماسية ويـوجد بالقرب من مدينة ارض المعارض ويطل علي النهر الأخضر مباشرة، كما حرصت الشركة المطورة علي اختيار الموقع بدقه عالية لكي يوفر علي قاطنيه حياة مليئة بالاستقرار وهادئة ويكون فرصة استثمارية ناجحة لجميع عملائنا ومن أبرز مميزات الموقع الجغرافي ما يلي:
- محور محمد بن زايد الجنوبي الشريان الرئيسي لطرق العاصمة.
- طريق العين السخنة و أيضا الطريق الدائري الأوسطي.
- حي السفارات والحي الحكومي كما يقترب من الحي الدبلوماسي بمسافة 10 دقائق فقط.
- كاتدرائية ميلاد المسيح و أيضا مسجد الفتاح العليم.
- مبني دار الأوبرا الجديد و أيضا فندق الماسة بمسافة لا تتجاوز الدقائق.
- إطلالة ساحرة علي النهر الأخضر مباشرة مع أكبر حديقة خضراء علي مستوي العالم.
- مطار العاصمة الدولي New Capital International Airport.
- البوسكو العاصمة الادارية الجديدة
مساحة كمبوند ريڤان التعمير العربية
حرص المطور العقاري لمشروع ريفان العاصمة الادارية Rivan New Capital وهو شركة التعمير المصرية للتطوير والاستثمار العقاري علي ان يقام الكمبوند بمساحة ضخمة يمكن من خلالها توفير كل الخدمات والمرافق التي يحتاج اليها العملاء للحصول علي حياة مستقرة وبها الكثير من الهدوء والخصوصية ،لذلك تم بناء المشروع علي مساحة بلغ قدرها حوالي 18 فدان وتم تخصيص نسبة 25% من إجمالي المساحة الكلية للإنشاءات و المباني ،حيث ان المجمع يحتوي علي 700 وحدة سكنية متنوعة في المساحات والتصميمات ،وذلك لان الكمبوند يضم (الاستديو ،الشقق ،الدوبلكس ،البنتهاوس و أيضا لينكد فيلا ) لكي يعطي عملائه فرص متعددة في اختيار الوحدة المناسبة لذوقهم الخاص وظروفهم المختلفة.
كما خصصت نسبة 75% من المساحة الاجمالية حتى تكون للخدمات والمرافق المتنوعة سواء كان منها الترفيهية او الاجتماعية او الصحية او التجارية لتلبي كل احتياجات ومتطلبات النزلاء التي يحتاجون لها مما يجعلهم لا يضطرون للخروج من الكمبوند، وأيضا أضف الي ذلك ان بكمبوند ريفان يـوجد المساحات الخضراء الشاسعة واللاند سكيب الواسعة التي تضم أنواع مختلفة من الحدائق والمنتزهات بجانب المسطحات المائية والبحيرات الصناعية التي تعطي الوحدة إطلالة جذابة علي المناظر الساحرة التي تحاكي جمال الطبيعية الخلاب و الفيو المتألق الذي يعطي طابع من الرقي والفخامة لا مثيل له.
تصميمات كمبوند ريفان العاصمة الادارية الجديدة

أهتمت شركة التعمير العربية للتطوير العقاري بوضع احدث الخطط الهندسية لبناء كمبوند ريفان العاصمة الادارية الجديدة Rivan New Capital على أحدث التصميمات العالمية التي تناسب مختلف الاذواق ،حيث استعانت الشركة بمجموعة من أكبر الخبراء والمهندسين بمجال الهندسة المعمارية لبناء الكمبوند طبقا للمواصفات والمعايير الدولية بأفل المواد البنائية المقاومة للعوامل الطبيعية، بالإضافة الي اهتمام الشركة الكبير بوضع أفضل الاعمال الديكورية من الداخل والخارج لكمبوند ريفان العاصمة الادارية الجديدة حتى يصبح بصورة معمارية فخمة تناسب أصحاب الذوق الرفيع.
كما تعد التصميمات بمشروع ريفان فائقة الجمال ونري ذلك من خلال الاطلالات الساحرة التي تتمتع بها وحدات الكمبوند ،حيث ان كل وحده تطل علي البحيرات والمسطحات المائية ذات المياه الكريستالية البراقة وهناك مساحات خضـراء شاسعة بألوان خلابة تتناغم وتتناسق لإعطائك رؤية بانورامية خلابة راقية ، لذلك تم تصميم الكمبوند بطريقة علمية حديثة تعبر عن الجمال المعماري الحديث من خلال وجود أفضل الأساليب والتقنيات الدولية ، كمبوند ريفان العاصمة الادارية الجديدة هو عبارة عن لوحة تحاكى الطراز العصري الجميل .
مميزات وخدمات كمبوند ريفان العاصمة الادارية الجديدة
كمبوند ريفان العاصمة الادارية به العديد من المرافق والخدمات التي تلبي كافة احتياجات السكان وهذا يجعله مميز عن غيره من المشـروعات السكنية الأخرى، فهو عبارة عن مدينة متكاملة المنشآت و مصممة علي مستوي عالي من الفخامة والإتقان تمنحك حياة بها الكثير من الراحة والاستقرار ومن أبزر تلك الخدمات المناحة التالي:
- مول ريفان سكوير الذي يضم عدد من المحلات التجارية ويلبي مختلف احتياجاتك.
- كل مبني عدد من المصاعد الكهربائية لسهولة الحركة والتنقل بينا الطوابق.
- نادي رياضي به عدد من الملاعب الرياضية لممارسة كل الأنشطة المختلفة مثل كرة القدم والسلة والتنس.
- نادى صحي به جيم مجهز بأحدث الأجهزة ويضم مجموعة مدربين متخصصين.
- أماكن مخصصه للأطفال بها عدد من الألعاب الترفيهية لقضاء وقت ممتع ومزودة بكاميرات مراقبة لحمايتهم.
- مسارات مخصصة للمشي والركض كما وفرت ممرات أخري لركوب الدراجات فقط.
- مقاعد للجلوس من اجل ممارسة اليوجا أو القراءة.
- حمامات سباحة تختلف في الاحجام تناسب جـميع الأعمار سواء الأطفال او الكبار .
- صالات مغطاة (حمامات سباحة) من اجل السيدات فقط لقضاء أوقات ممتعه بحريتهم.
- كلوب هاوس يحتوي على سبا يضم أحدث خدمات الساونا و أيضا الجاكوزي للاستجمام.
- نظام الهاوس كيبنج علي خدمة فندقية عالية في كمبوند ريفان العاصمة الادارية الجديدة.
- جراج خاص لكل وحده من اجل وقوف السيارات دون التزاحم امام الوحدات.
- طاقم من أفراد الامن والحراسة يعمل طوال اليوم ولمدة 24 ساعة مدربين على مستوى عالي.
- كاميرات المراقبة التي تعمل على مدار اليوم بجانب البوابات الإلكترونية لتزويد الأمن والأمان بالمجمع وحماية السكان.
ما هي أسعار ومساحات كمبوند ريفان العاصمة الادارية الجديدة؟
- الشقق السكنية تبلغ بداية مساحتها 129 متر مربع.
- وحدات الدوبلكس تبدأ المساحات بها من 396 متر مربع.
- فلل ببداية مساحات قدرها 547 متراً مربعاً.
- أسعار الكمبوند تأتي ببداية من مبلغ قدره 9,791,925 جنيه مصري.
الرجاء العلم أن الأسعار في تغير مستمر
للاطلاع علي باقة أسعار ومساحات الكمبوند اضغط هنا
ما هي طرق دفع وتقسيط كمبوند ريفان العاصمة الادارية الجديدة؟
- 5% مقدم الحجز و أيضا يتم تقسيط الباقي علي فترة تصل إلي 8 سنوات بدون فوائد.
لمعرفة المزيد من التفاصيل أو الحجز تواصل معنا الان